Lot outline is approximate based on county GIS data, but may not be accurate in the event that the Parcel ID or address are not correct and/or final.
Images






Map
Directions
Property is located on 100 W between Sr 116 and US 224
Description
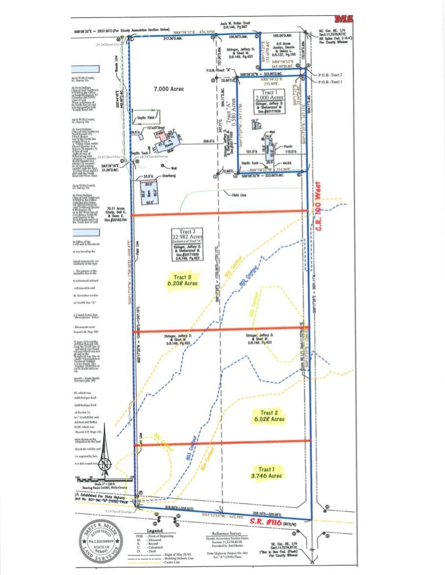
Looking for a place to build your dream home in the country? Discover the possibilities with this hard-to-find 6.2 +/- acre parcel located in Norwell School district just south of Uniondale. This property is a part of a split of the original 23 acre parcel. Taxes and legal description will change upon property division.
Details
Property Details
-
MLS #:202533128
-
Price$180,000
-
Approx. Lot Size Acres6.208
-
Approx. Lot Size SqFt270,420
-
ClassLots And Land
-
DOM2
-
Lot Dimensions640x420
-
Parcel ID#
-
Property Sub-TypeAgricultural Land
-
StateIN
-
SubdivisionNone
-
Zip46791
Other Features
-
Waterfront Y/NNo
Last updated: November 15 2025, 5:12 PM
Listing courtesy of: Isaac Stoller, Steffen Group
IDX information provided by the Indiana Regional MLS. IDX information is provided exclusively for consumers’ personal, non-commercial use and may not be used for any purpose other than to identify prospective properties consumers may be interested in purchasing. Data is deemed reliable but is not guaranteed accurate by the MLS. Listings displayed on this website may be subject to prior sale or removal from sale; availability of any listing should always be independently verified.
Calculator
Number of Payments
Monthly Payments
$