Directions
Corner of E Washington and Warren Street


































Corner of E Washington and Warren Street
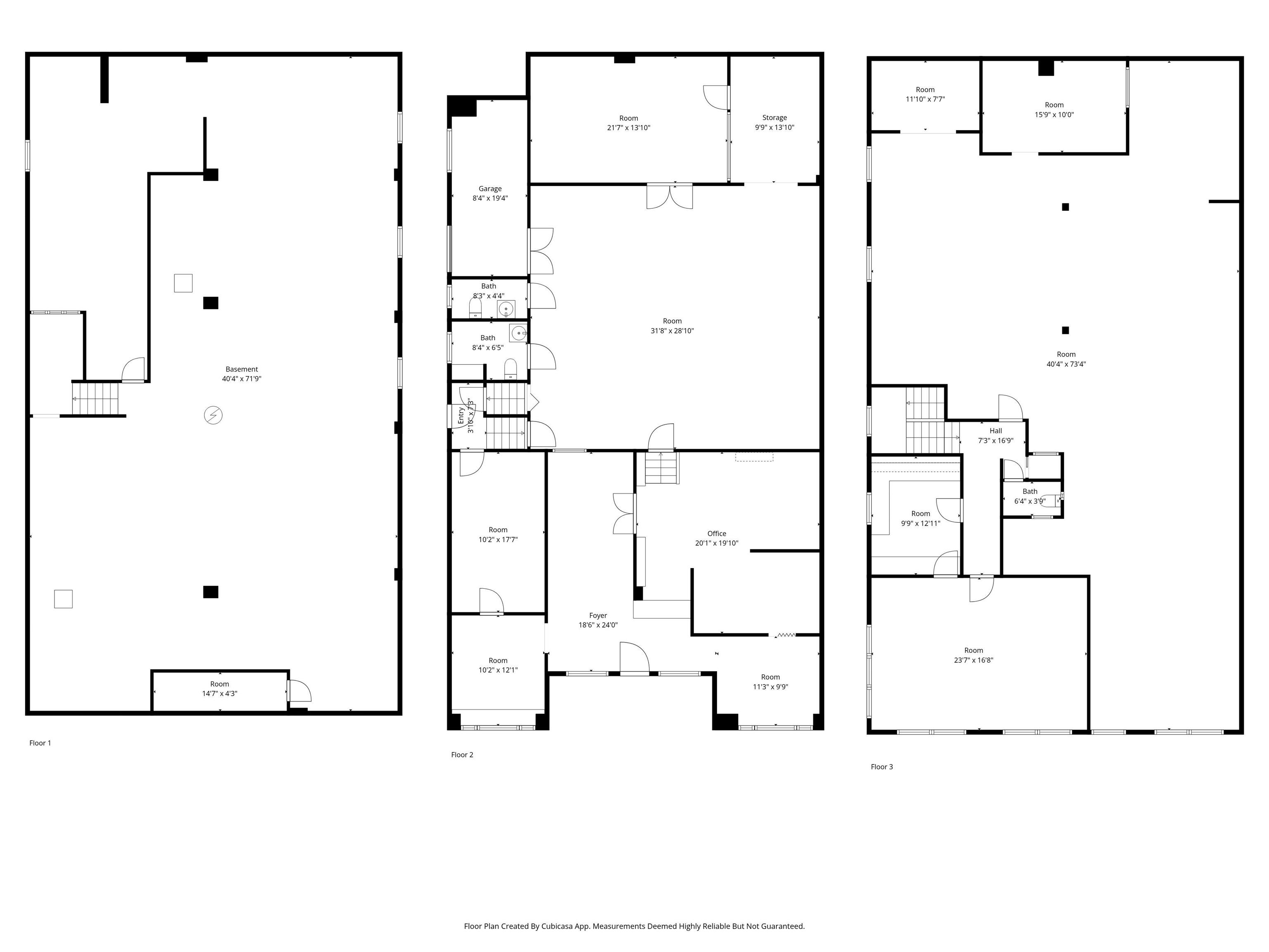
Step into a piece of Huntington history! For over 40 years, Stine’s Printing has been a cornerstone business in this solid, all-brick building, now ready for its next chapter. With over 4,000 square feet of space on the main level, this property offers endless potential for retail, office, studio, or possible restaurant use. Located in a prime downtown location with excellent visibility and convenient parking, this property has been well cared for and mechanically maintained, including a new roof (2022) and 18 double-hung windows installed in 2017. Throughout the main level, the space is full of character and charm, featuring the original tin 12-foot ceiling, which is currently concealed above an easily removable drop ceiling. The flexible floor plan includes office, retail/showroom, production, and storage space, along with a convenient side loading dock for deliveries or easy access. You’ll also be pleasantly surprised by the clean and easily accessible basement, offering additional storage or workspace options. The second level offers a blank canvas with another 4,000+ square feet, complete with beautiful views of the downtown and an open layout, ideal for loft apartments, additional offices, or event space (all subject to approval). Bring your vision to this landmark property, whether you’re preserving its history or reimagining its future, this space offers unmatched quality, location, and potential.
Last updated: December 6 2025, 8:03 AM
Listing courtesy of: Molly Rainbow-Kesler, Hoosier Real Estate Group
IDX information provided by the Indiana Regional MLS. IDX information is provided exclusively for consumers’ personal, non-commercial use and may not be used for any purpose other than to identify prospective properties consumers may be interested in purchasing. Data is deemed reliable but is not guaranteed accurate by the MLS. Listings displayed on this website may be subject to prior sale or removal from sale; availability of any listing should always be independently verified.
Number of Payments
Monthly Payments
$