Directions
State Rd 9 turn East on 100 S house is on South side of road


































State Rd 9 turn East on 100 S house is on South side of road
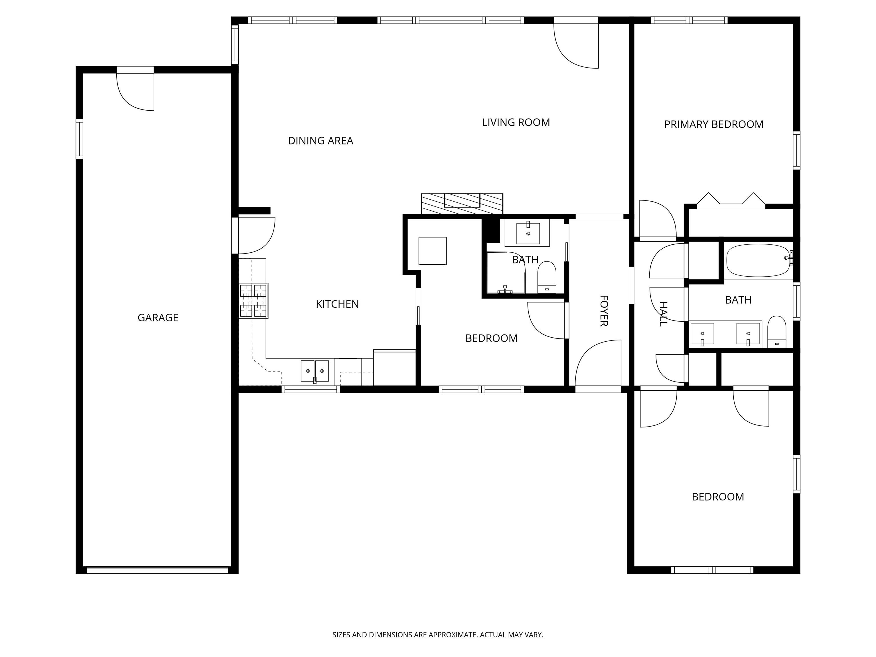
Your piece of paradise is ready for you! 120 Feet Lakefront on Fish Lake, .68 acre lot in this recently remodeled like new Brick Home. This property includes a 1200 sq ft, 30×40 pole building for extra entertaining, and storage for your lake toys. This home has a new metal roof, drywall, lighting, flooring, doors, fixtures, hvac system, electric, and is just like stepping into your new lake home. The new Kitchen has quartz countertops, soft touch cabinets, backsplash, new stainless-steel appliances, flooring, fixtures, and lighting. The open living and dining area are surrounded by vinyl windows that allow you to take in the 120 ft of unobstructed Southern exposure lake views and includes a cozy fireplace for chilly nights. The primary bedroom also enjoys the lake views, a new full bathroom with tub/shower surround, and new double vanity. There are 2 other bedrooms, and another updated bathroom for guests. Off the living area there is a covered porch overlooking the huge lakefront yard that includes a fire pit, plenty of room for fun & games, and a great sandy beach area ready for you to start making endless lake memories. The home also includes a hard to find 5 ft high cement crawlspace for plenty of extra storage and storm shelter. Two lakes to enjoy paddle boarding, kayaking, swimming, fishing, or just floating on the Fish/Royer lake chain.
Last updated: April 30 2026, 3:06 PM
Listing courtesy of: Noel Frost, Coldwell Banker Real Estate Gr
IDX information provided by the Indiana Regional MLS. IDX information is provided exclusively for consumers’ personal, non-commercial use and may not be used for any purpose other than to identify prospective properties consumers may be interested in purchasing. Data is deemed reliable but is not guaranteed accurate by the MLS. Listings displayed on this website may be subject to prior sale or removal from sale; availability of any listing should always be independently verified.
Number of Payments
Monthly Payments
$