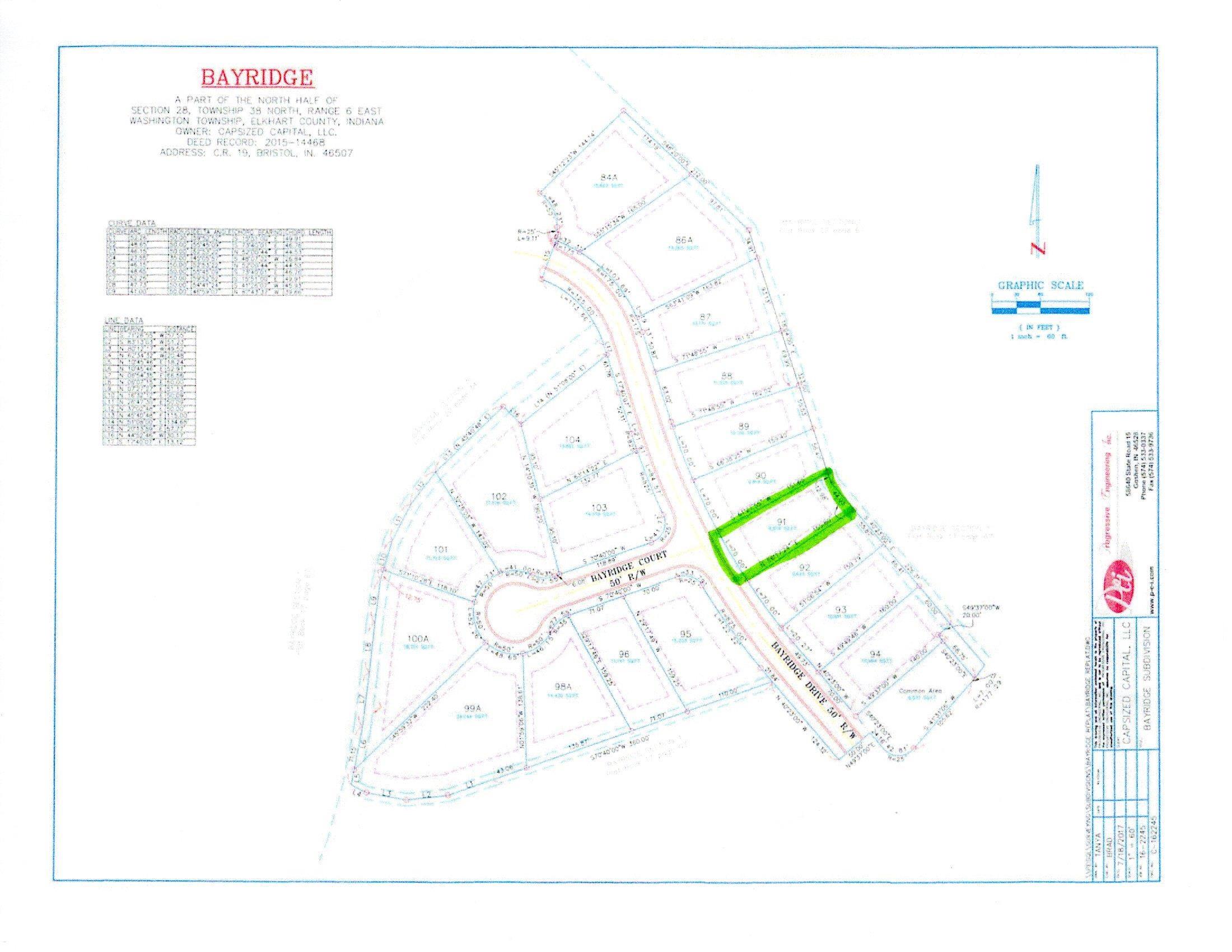
Lot outline is approximate based on county GIS data, but may not be accurate in the event that the Parcel ID or address are not correct and/or final.
Images

Map
Directions
From SR 120 East onto Bayridge Dr. (across from Raber's Golf Course). Property on east side of street
Description
The Enclave at Bayridge offers prime lots available for building your custom villa. Maintenance free living in a picturesque and private neighborhood. Offering HOA Covenants and Restrictions (in associated docs) and architectural control to protect and preserve the value of all owners. All builders welcome! There is a one time HOA fee of $500.00 at closing. HOA fees for lot only is $470 annually and includes mowing, trimming, and maintenance of common areas. HOA fees for villas is $2170 annually and includes lawn maintenance, annual sprinkler set up and shut down, fertilization, snow removal, common area maintenance, and staining reserve.
Details
Property Details
-
MLS #:202301716
-
Price$36,000
-
Approx. Lot Size Acres0.23
-
Approx. Lot Size SqFt10,019
-
ClassLots And Land
-
DOM785
-
Lot Dimensions65x154
-
Parcel ID#20-03-28-251-045.000-031
-
Property Sub-TypeResidential Land
-
StateIN
-
SubdivisionBay Ridge / Bayridge
-
Zip46507
Other Features
-
Waterfront Y/NNo
Last updated: November 13 2025, 12:43 AM
Listing courtesy of: Brittainy Gilliland, McKinnies Realty, LLC Elkhart
IDX information provided by the Indiana Regional MLS. IDX information is provided exclusively for consumers’ personal, non-commercial use and may not be used for any purpose other than to identify prospective properties consumers may be interested in purchasing. Data is deemed reliable but is not guaranteed accurate by the MLS. Listings displayed on this website may be subject to prior sale or removal from sale; availability of any listing should always be independently verified.
Calculator
Number of Payments
Monthly Payments
$