Directions
Take Hathaway Rd. to Ravenswood Subdivision. Take Ravenswood Dr. to Tara Bella and turn right. Go to 1622 Tara Bella.




































Take Hathaway Rd. to Ravenswood Subdivision. Take Ravenswood Dr. to Tara Bella and turn right. Go to 1622 Tara Bella.
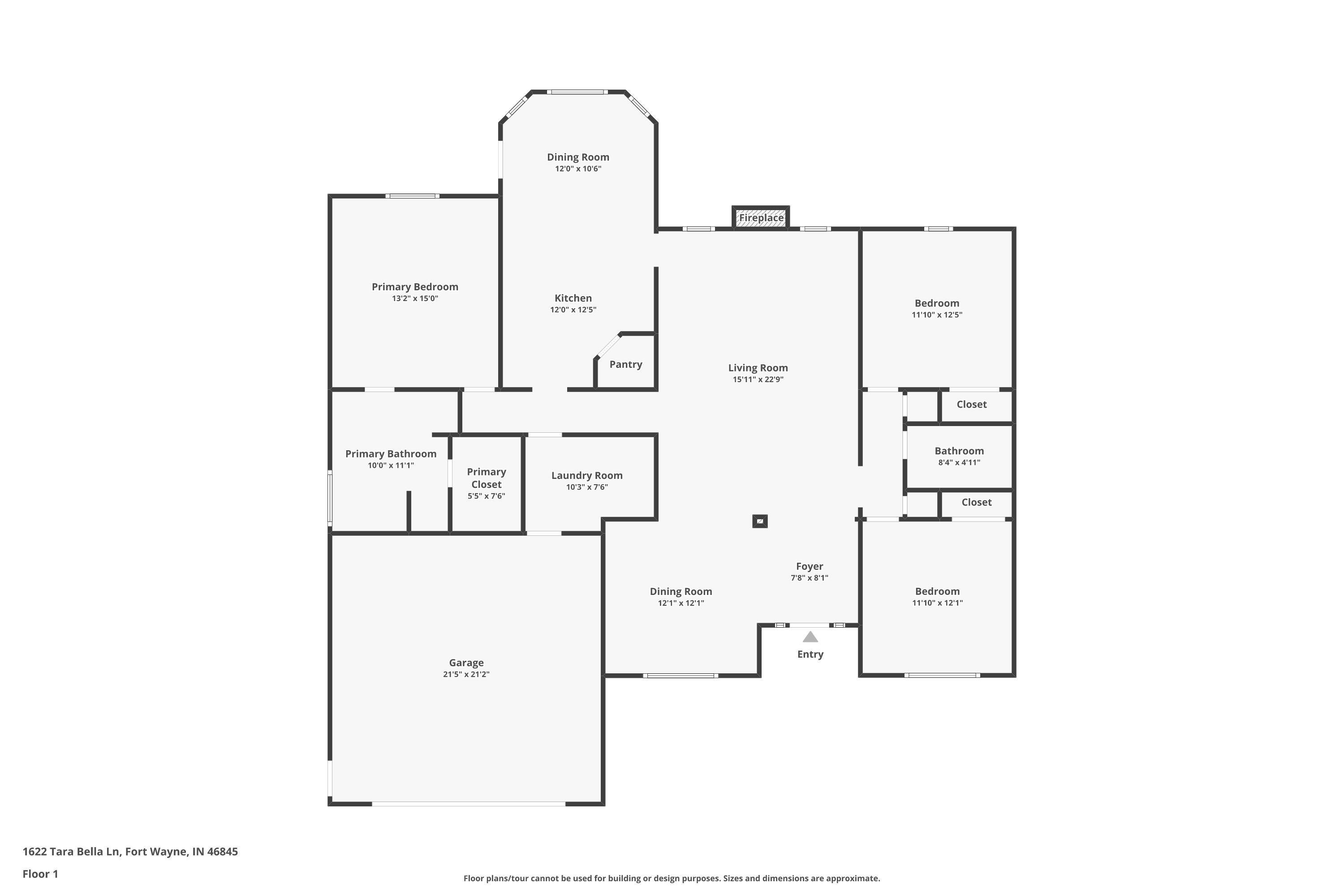
Welcome to 1622 Tara Bella Ln, a beautiful 3 bedroom, 2 bathroom ranch on a cul de sac in Ravenswood off of Hathaway Rd. This split bedroom floor plan home perfectly combines comfort, craftsmanship, and convenience surrounded by peaceful views of the natural wetlands behind. Inside is an open and airy living room highlighted by a cathedral ceiling and a cozy gas fireplace. Elegant rounded archways add architectural character. The open dining area w a 10′ ceiling flows seamlessly into the open concept living area and kitchen, where you’ll find Grabill Cabinet Company cabinetry w dovetail drawers, a walk-in pantry, and all major appliances included (dishwasher, microwave, refrigerator, electric range). Enjoy a dual sink vanity, walk-in closet, jetted tub, and walk in shower. The two additional bedrooms feature illuminated closets. Additional features include a humidifier, owned water softener, utility sink in the laundry/mud room, electric water heater, and a high efficiency furnace (2007). The AC was updated in 2021, and the water heater was replaced in 2024. Peg board in the garage offers organization and the 200 amp service is neatly labeled for ease of maintenance and plenty of power. Step outside to the back patio, where the private view of the wetlands owned by the community creates a semi-private setting. The home’s architectural shingle roof and well-kept exterior reflect true pride of ownership – pay attention to the nice exterior painting! Located just minutes from Payton County Park, Allen County Fairgrounds, Huntertown Family Park, Pufferbelly (Rivergreenway) Trail, Parkview Family YMCA, Salomon Farm Park, Pine Valley Golf Course, and Autumn Ridge Golf Course, this home offers the perfect mix of recreation and relaxation. Everyday conveniences are close by, including CVS, Walgreens, Walmart Supercenter, Aldi, and Kroger Marketplace – There might even be a new Kroger built on the corner of Lima/Hathaway soon. Enjoy nearby dining at Well Grounded Cafe, Union Social, Laz’s Cuban Cafe, Pizza King, SOLBIRD Kitchen & Tap, Arena Bar & Grill, and Black Canyon Restaurant, along w national favorites like McDonald’s, Starbucks, Buffalo Wild Wings. With plenty of banks, gas stations, and top medical facilities like Dupont Hospital and Parkview Regional Medical Center nearby, this location truly has it all. 1622 Tara Bella Lane offers the perfect blend of comfort, convenience, and quiet suburban living. Make it yours today!
Last updated: November 17 2025, 12:43 PM
IDX information provided by the Indiana Regional MLS. IDX information is provided exclusively for consumers’ personal, non-commercial use and may not be used for any purpose other than to identify prospective properties consumers may be interested in purchasing. Data is deemed reliable but is not guaranteed accurate by the MLS. Listings displayed on this website may be subject to prior sale or removal from sale; availability of any listing should always be independently verified.
Number of Payments
Monthly Payments
$